Orange County

The ArtsCenter could have another new home in Carrboro. Why the plan has changed.

An existing office building at 400 Roberson St. in downtown Carrboro was offered to The ArtsCenter in September 2021 for its new home. If the project advances, it would replace a proposed building already approved for Jones Ferry Road.
An existing office building at 400 Roberson St. in downtown Carrboro was offered to The ArtsCenter in September 2021 for its new home. If the project advances, it would replace a proposed building already approved for Jones Ferry Road. Contributed

A deal to keep the arts in downtown Carrboro for many more decades could replace plans for a new ArtsCenter on Jones Ferry Road.

The ArtsCenter, now located in outdated space at 300 E. Main St., has a building at 400 Roberson St. under contract and plans to submit a special-use permit application to the town next week, executive director Dan Mayer told The News & Observer in an interview Wednesday.

The site is behind a public parking lot at the corner of Main and Roberson streets and the Libba Cotten Bikeway, which skirts the northeastern property line.

“It’s more space than we would have had on Jones Ferry Road, and it’s more accessible,” Mayer said. “It won’t be a (brand-new) designed building, but we’ve engaged an architect and he’s started doing drawings. I think it will really be a great, new home for The ArtsCenter.”

However, Mayer won’t see the new project to completion, because he is leaving Jan. 31 for a new job at the Chapman Cultural Center in South Carolina. Deputy Director Mark Bettger will be interim director until the board hires a permanent replacement.

It’s time to seek new opportunities now that The ArtsCenter is “set up for success,” Mayer said. He cited its firm financial footing despite COVID-19 restrictions, an ongoing fundraising campaign, and Bettger’s ability to steer the course.

“This opportunity was presented, and I thought it was the right time to bring in some new leadership at The ArtsCenter and let them finish this project and carry forth the strengths that we’ve really developed over the last couple of years,” Mayer said.

The nonprofit ArtsCenter has offered arts classes, camps and performances out of this former Piggly Wiggly store in Carrboro for more than 40 years.
The nonprofit ArtsCenter has offered arts classes, camps and performances out of this former Piggly Wiggly store in Carrboro for more than 40 years. Tammy Grubb tgrubb@heraldsun.com

Similar cost, more program space

The one-story Yaggy Building on Roberson Street is less than a five-minute walk from the current ArtsCenter, which has operated out of a former Piggly Wiggly grocery store since the 1980s. Main Street Partners LLC has been redeveloping the surrounding strip mall at 300 E. Main St., which also is home to the Cat’s Cradle, Vencino Brewing Co. and Amante Gourmet Pizza.

On Roberson Street, the ArtsCenter would own the roughly 17,500-square-foot Yaggy Building, two acres and 87 parking spaces.

It would be slightly smaller than the current building but replace an even smaller building approved for 315 Jones Ferry Road, about a mile west of the current site. The nonprofit is continuing to pay installments on the land while considering its options, Mayer said.

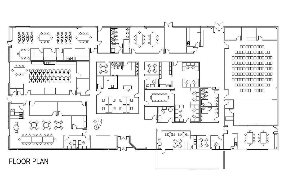
The ArtsCenter’s early plans for 400 Roberson St. include a 118-seat performance theater, a larger ceramics studio, gallery and walled outdoor space, a painting center, performance space and writer’s studio, and adult and youth maker spaces.
The ArtsCenter’s early plans for 400 Roberson St. include a 118-seat performance theater, a larger ceramics studio, gallery and walled outdoor space, a painting center, performance space and writer’s studio, and adult and youth maker spaces. David Gange Contributed

Rough plans for Roberson Street include a 118-seat performance theater, a larger ceramics studio, gallery and walled outdoor space, a painting center, performance space and writer’s studio, and adult and youth maker spaces, including an “Alchemy Lab” for audio-video projects and a “FabLab” for working with textiles, said ArtsCenter board President Michael Frisch and architect David Gange.

The project also would install a sprinkler system and give the exterior a facelift.

“You’re getting about 4,000 more square feet in this building,” Gange said. “In the Jones Ferry one, the performance space had dropped off due to budget, so we’ll have that back.”

The renovation could cost between $6 million and $7 million, an amount already budgeted for the Jones Ferry Road construction, Mayer said. The ArtsCenter has $3 million so far from its capital campaign, he said.

But the new building won’t have the same physical challenges as the Jones Ferry Road site, which required working with steep slopes, an Orange Water Sewer Authority easement, and a stream buffer covering half the land. The council approved plans for the 12,600 square foot, two-story building with 38 parking spaces last year after waiving one of the town’s three local stormwater requirements.

This time, they hope to get an expedited town review, since the building’s exterior isn’t going to change significantly, Frisch said. The site is zoned for general business, which includes a range of uses but with limited nighttime hours to reduce effects on nearby homes.

A preliminary rendering of The ArtsCenter’s proposed new home is seen from the right of way of Sweet Bay Place in downtown Carrboro. Plans for the new arts center could be submitted in late January 2022.
A preliminary rendering of The ArtsCenter’s proposed new home is seen from the right of way of Sweet Bay Place in downtown Carrboro. Plans for the new arts center could be submitted in late January 2022. David Gange Contributed

Roberson Street library, changes

The idea for the Roberson Street site developed quickly when they were approached by representatives of The Yaggy Corp., which owns the building, ArtsCenter officials said. The previous tenant, UNC’s IT and finance operations, moved out in September.

The location is great for a number of reasons, including the additional parking and the proximity to downtown restaurants and shops, Frisch said. Buses bringing children to The ArtsCenter will be able to pull right up to the sidewalk, he said.

It’s also going to be within walking distance of 203 South Greensboro, the town’s joint project with Orange County to build the new Southern Branch Library, along with space for town parks, recreation and cultural resource programs, a Teen Center, Virtual Justice Center, the Orange County Skills Development Center, community radio station WCOM, and a parking deck.

The will mean big changes for Roberson Street in the next two years, Mayer said.

“It’s an alley almost now. It’s a cut through. It’s not a street with its own identity,” he said. “Once the library goes in, once we go in, all of sudden, it won’t be just the back of our main street. I think it will eventually acquire its own identity.”

The main entrance to the Southern Branch Library would be located off Roberson Street near Open Eye Cafe in downtown Carrboro. The building at 203 S. Greensboro St. also would house town offices and a host of other programs and services.
The main entrance to the Southern Branch Library would be located off Roberson Street near Open Eye Cafe in downtown Carrboro. The building at 203 S. Greensboro St. also would house town offices and a host of other programs and services. Perkins & Will Contributed

The ArtsCenter had sought to be a part of the 203 South Greensboro project but changed course in 2018. Now, there will be many more opportunities to collaborate, Frisch said.

“I know there are some folks that are disappointed that we’ll be leaving Jones Ferry, because they were seeing (us as) sort of the anchor tenant on that part of town,” he said.

“I do know when we talked to business owners in town, they would have much preferred us to be in town so that people can walk from a restaurant to a performance or an evening class or pick up your kids and go to dinner,” he said.

The Orange Report

Calling Chapel Hill, Carrboro and Hillsborough readers. Check out The Orange Report, a free weekly digest of some of the top stories for and about Orange County published in The News & Observer and The Herald-Sun. Get your newsletter delivered straight to your inbox every Thursday featuring stories by our local journalists. Sign up for our newsletter here. For even more Orange-focused news and conversation, join our Facebook group "Chapel Hill Carrboro Chat."

This story was originally published January 20, 2022 at 8:06 AM.

Related Stories from Raleigh News & Observer
Tammy Grubb
The News & Observer
Tammy Grubb has written about Orange County’s politics, people and government since 2010. She is a UNC-Chapel Hill alumna and has lived and worked in the Triangle for over 30 years.
Get unlimited digital access
#ReadLocal

Try 1 month for $1

CLAIM OFFER