Orange County

More affordable housing for Chapel Hill seniors? Here’s where developers want to build.

Longleaf Trace, an affordable apartment building proposed for Legion Road in Chapel Hill, would replace a largely wooded lot (red marker) and two single-family rental homes. The site is south of the town’s Legion Road park and affordable housing site.
Longleaf Trace, an affordable apartment building proposed for Legion Road in Chapel Hill, would replace a largely wooded lot (red marker) and two single-family rental homes. The site is south of the town’s Legion Road park and affordable housing site. Contributed

Older adults could have another option for affordable apartment living in Chapel Hill if a proposed three-story project is approved for land next to the town’s future Legion Road park.

Developers Taft Mills Group and Community Home Trust have submitted the Longleaf Trace project to a town review process that moves housing projects to approval more quickly if they include at least 25% affordable units.

A virtual public information meeting will be held Thursday. A Town Council review and public hearings have not been scheduled.

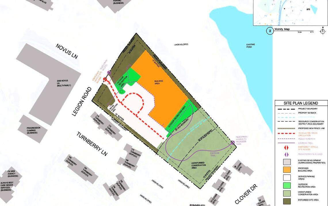
Longleaf Trace would add 48 apartments for adults ages 55 and up at 1708 and 1712 Legion Road, with the option to build another 12 apartments in the future.

The 3.24-acre site is across the street from Ram’s Plaza and south of the town’s 1714 Legion Road site, where roughly nine acres have already been set aside for affordable housing. Nonprofit housing developer DHIC Inc. is building the town’s 160-apartment project, which would abut a future, 27-acre park.

Longleaf Trace would preserve over a third of the site, including a stream, as a buffer with homes in The Meadows neighborhood. A parking lot would back up to homes in the Turnberry neighborhood.

A recreational trail through the preserved land would connect Longleaf Trace residents to the future Legion Road park.

Taft Mills Group and Community Home Trust have proposed Longleaf Trace, a project that could add up to 60 apartments for adults ages 55 and older at 1708 and 1712 Legion Road in Chapel Hill.
Taft Mills Group and Community Home Trust have proposed Longleaf Trace, a project that could add up to 60 apartments for adults ages 55 and older at 1708 and 1712 Legion Road in Chapel Hill. Taft Mills Group/Community Home Trust Contributed

Chapel Hill’s faster housing approval process

The council approved the faster approval process for some projects in 2022, because there is a critical need for affordable housing in Chapel Hill, where the area median income is $116,200 a year for a family of four.

Rental housing projects approved through the Community Priority process must remain affordable to someone earning up to 60% of the area median income for Orange County for 30 years. The limit is 80% of AMI for projects that offer housing for sale.

The town completes the approval process in about six months, compared to the 12 to 18 months it normally takes.

Longleaf Trace apartments would be affordable to an individual earning up to $42,480 a year, or a couple earning up to $48,540. The monthly rent is now $1,137 for a one-bedroom apartment and $1,365 for two bedrooms, according to the N.C. Housing Finance Agency.

Taft Mills Group and Community Home Trust have worked with the town before on affordable housing projects, including the new Tanyard Branch Trace (Jay Street) affordable housing project off Estes Drive Extension, near the Carrboro town limits. The N.C. Housing Finance Agency awarded the developers low-income housing tax credits last year to help build Tanyard Branch Trace.

Longleaf Trace, an affordable apartment building proposed for Legion Road in Chapel Hill, would replace a largely wooded lot (red marker) and two single-family rental homes. The site is south of the town’s Legion Road park and affordable housing site.
Longleaf Trace, an affordable apartment building proposed for Legion Road in Chapel Hill, would replace a largely wooded lot (red marker) and two single-family rental homes. The site is south of the town’s Legion Road park and affordable housing site. Google Streetview Contributed

Longleaf Trace housing project details

Location: 1708-1712 Legion Road, Chapel Hill

Developer: Taft Mills Group, Community Home Trust

Property owner: PiCKS Enterprises LLC

What’s there now: Mostly wooded, with two rental homes

Proposed zoning: Conditional zoning district through town’s Community Priority housing process

What’s planned: 48 to 60 affordable apartments for adults ages 55 and up, with a parking lot, walking trail, and an integrated clubhouse, featuring a community room, kitchenette, fitness room, reading areas and a computer center

Learn more: A public information meeting will be held online at 5 p.m. Thursday at townofchapelhill.org/Home/Components/Calendar/Event/21640/15.

Related Stories from Raleigh News & Observer
Tammy Grubb
The News & Observer
Tammy Grubb has written about Orange County’s politics, people and government since 2010. She is a UNC-Chapel Hill alumna and has lived and worked in the Triangle for over 30 years.
Get unlimited digital access
#ReadLocal

Try 1 month for $1

CLAIM OFFER